פרטים נוספים
- סוג העסקה
- השכרה
- מצב הנכס
- חדש מקבלן (לא גרו בנכס)
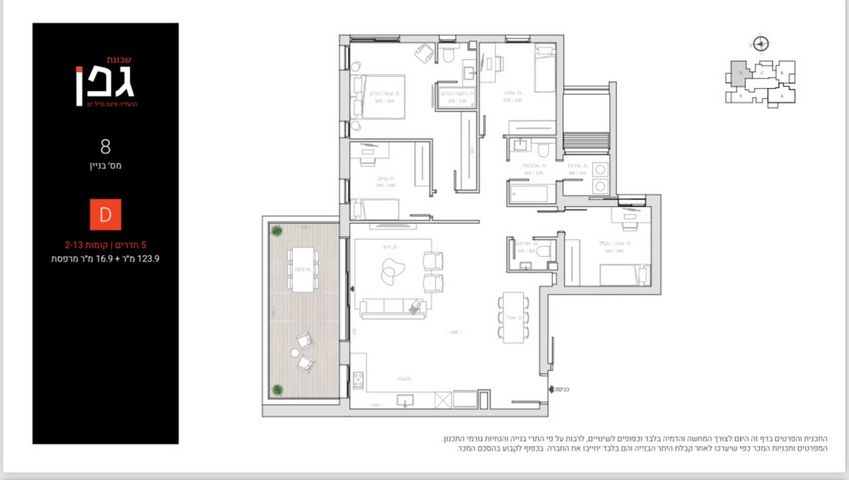
- מ״ר בנוי
- 124 מ״ר
- קומות בבניין
- 14
- סה״כ תשלום חודשי
- 12,197
- ועד בית (לחודש)
- 929
- ארנונה (לחודשיים)
- 1536
- מספר תשלומים
- 12
- חניות
- 1
- תאריך כניסה
- כניסה מידית
היסטוריית שווי הנכס










