יד2 לעמוד הבית
מודעות שאהבתי
  • מודעות שאהבתיאין לך עדיין מודעות שאהבת. כדי לשמור מודעות שאהבת, ולשמור נוספות, יש להתחבר לחשבון שלך

נכס עם ממ״ד
8,900 ₪

הרב יצחק ידידיה פרנקל 65

נכס עם ממ״ד

דירת גן, נווה שאנן, תל אביב יפו

4חדרים
קרקע
80מ״ר

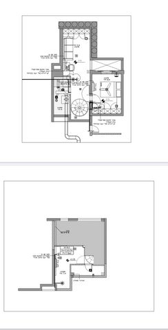
מפרטי - דירת גן מוארת, נדירה. שלושה מפלסים. תקרה גבוהה. קרקע, גלריה וקומת מרתף. בבניין בוטיק חדש. עיצוב אדריכלי. מטבח מאובזר, ריהוט חלקי, אפשרות לריהוט מלא. בלב השוקק של תל אביב. חניה אופציונלית. ממ"ד. מתאימה לזוג או שותפים.

פירוט ריהוט:
מקרר,מדיח,כיריים,מכונת כביסה, מייבש, מיטה זוגית, טלויזיה,ארונות

פרטים נוספים

סוג העסקה
השכרה
מצב הנכס
חדש מקבלן (לא גרו בנכס)
מ״ר גינה
38
קומות בבניין
7
מספר תשלומים
12
חניות
1
תאריך כניסה
02/12/25


מה יש בנכס

  • מעלית
  • גישה לנכים
  • מזגן טורנדו
  • דלתות רב-בריח
  • מיזוג
  • סורגים
  • מחסן
  • דוד שמש
  • משופצת
  • ממ"ד
  • לטווח ארוך
  • מרפסת
  • מרוהטת
  • מתאים לשותפים

היסטוריית שווי הנכס


















פרויקטים חדשים באזור