יד2 לעמוד הבית
מודעות שאהבתי
  • מודעות שאהבתיאין לך עדיין מודעות שאהבת. כדי לשמור מודעות שאהבת, ולשמור נוספות, יש להתחבר לחשבון שלך

נכס עם ממ״ד
45,000 ₪

בבלי

נכס עם ממ״ד

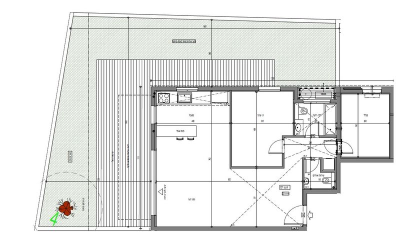
דירת גן, תל אביב יפו

3חדרים
קרקע
194מ״ר

ירידת מחיר! למכירה נדירה חדשה בבבלי מטר מהפארק! דירת גן מוארת ויפה בפרויקט חדש, 90 מ"ר + 104 מ"ר מרפסת שמש+גינה לעורף פתוח, 2 חדרי שינה, חדר אמבט וחדר שירותי אורחים, שקטה בסטנדרט גבוה, מוארת מטר הפארק. חניה רגילה תת קרקעית! ממ"ד! 45,000 ש"ח למ"ר לזריזים!

פרטים נוספים

סוג העסקה
מכירה
מצב הנכס
חדש (גרו בנכס)
מ״ר בנוי
90 מ״ר
מ״ר גינה
104
קומות בבניין
7
חניות
1
מחיר למ"ר
231 ₪
תאריך כניסה
כניסה מידית

מה יש בנכס

  • מעלית
  • גישה לנכים
  • מזגן טורנדו
  • דלתות רב-בריח
  • מיזוג
  • סורגים
  • מחסן
  • דוד שמש
  • משופצת
  • ממ"ד
  • מרפסת
  • מרוהטת

נכסים שנמכרו באזור

חיפוש

אין נכסים שנמכרו באזור

כדאי לנסות להוריד מסננים אם יש

היסטוריית שווי הנכס