יד2 לעמוד הבית
מודעות שאהבתי
  • מודעות שאהבתיאין לך עדיין מודעות שאהבת. כדי לשמור מודעות שאהבת, ולשמור נוספות, יש להתחבר לחשבון שלך

מקלט במרחק 462 מ׳
700,000 ₪

גלבוע 8

מקלט במרחק 462 מ׳

קב' רכישה/ זכות לנכס, מרכז העיר, עפולה

קרקע
110מ״ר

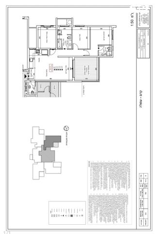
מדובר על דירת 4 חדרים עם 3 כיוונים, קומה שנייה. בפרוייקט מגורים KEDEM VALLEY . בשכונה החדשה הדרום מערבית - רובע גלבוע. מדובר במתווה של קבוצת רכישה כאשר הצפי לאכלוס הוא 3.5 שנים . הוגשה בקשה להיתר בנייה. שלמתי 430,000 ש"ח על הקרקע , עלויות משעורות לביצוע, לפי 100 מ"ר בעלות ביצוע של כ 7,000 אזי כ700,000 ש"ח. ( לשם השוואה מחיר דירות בעפולה נעות באיזור 1,500,000) אני מעוניין למכור במכיר שקניתי .

פרטים נוספים

סוג העסקה
מכירה
מצב הנכס
חדש מקבלן (לא גרו בנכס)
חניות
ללא
מחיר למ"ר
6,363 ₪
תאריך כניסה
כניסה גמישה


מה יש בנכס

  • מעלית
  • גישה לנכים
  • מזגן טורנדו
  • דלתות רב-בריח
  • מיזוג
  • סורגים
  • מחסן
  • דוד שמש
  • משופצת
  • ממ"ד
  • מטבח כשר

נכסים שנמכרו באזור

חיפוש

אין נכסים שנמכרו באזור

כדאי לנסות להוריד מסננים אם יש

היסטוריית שווי הנכס


















פרויקטים חדשים באזור