יד2 לעמוד הבית
מודעות שאהבתי
  • מודעות שאהבתיאין לך עדיין מודעות שאהבת. כדי לשמור מודעות שאהבת, ולשמור נוספות, יש להתחבר לחשבון שלך

נכס עם ממ״ד
10,500 ₪

יצחק אפשטיין 7

נכס עם ממ״ד

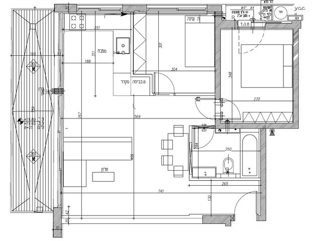
דירה, הצפון החדש - כיכר המדינה, תל אביב יפו

3חדרים
קומה6/7
73מ״ר

דירה להשכרה מפרטי ללא תיווך! במיקום הכי טוב שיש. רחוב שקט, מרחק הליכה מאבן גבירול, בתי ספר, גנים ותחנת רכבת קלה. דירה פינתית צפון מערב, גודל הדירה 67 מ"ר+ 13 מ"ר מרפסת מפנקת עם ויטרינה ענקית וממד. חנייה תת קרקעית רגילה, לא במתקן. כל הגמרים בדירה שודרגו. ריצוף דמוי בטון, מטבח מפואר של חברת אביבי היוקרתית, ריצוף דמוי פרקט בחדרים, חיפוי יוקרתי מהרצפה ועד התקרה בחדר האמבטיה.

פרטים נוספים

סוג העסקה
השכרה
מצב הנכס
חדש מקבלן (לא גרו בנכס)
מ״ר בנוי
73 מ״ר
קומות בבניין
7
מספר תשלומים
12
חניות
1
תאריך כניסה
20/01/26


מה יש בנכס

  • מעלית
  • גישה לנכים
  • מזגן טורנדו
  • דלתות רב-בריח
  • מיזוג
  • סורגים
  • מחסן
  • דוד שמש
  • משופצת
  • ממ"ד
  • מרפסת
  • חיות מחמד

היסטוריית שווי הנכס


















פרויקטים חדשים באזור