יד2 לעמוד הבית
מודעות שאהבתי
  • מודעות שאהבתיאין לך עדיין מודעות שאהבת. כדי לשמור מודעות שאהבת, ולשמור נוספות, יש להתחבר לחשבון שלך

בלעדיותמקלט במרחק 167 מ׳
לא צוין מחיר

שבזי

בלעדיותמקלט במרחק 167 מ׳

מגרשים, קרית עקרון

קרקע
272מ״ר

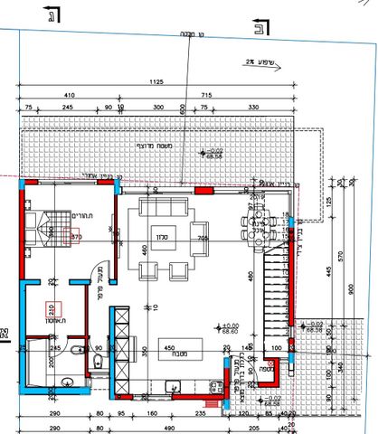
מגרש אחורי בטאבו ברחוב שבזי, 272 מ"ר ( 27 מ"ר שמוקצה לחניות בלבד ), המגרש נמכר עם תוכניות מאושרות לבית בגודל של כ 170 מ"ר כולל כל התשלום עבור היתר הבנייה ( סקיצות והדמיות מצורפות בתמונות ), נותר רק לבחור קבלן ולבנות, לרציניים בלבד!!!

פרטים נוספים

סוג העסקה
מכירה
חניות
ללא
תאריך כניסה
כניסה מידית

מה יש בנכס

  • מעלית
  • גישה לנכים
  • מזגן טורנדו
  • דלתות רב-בריח
  • מיזוג
  • סורגים
  • מחסן
  • דוד שמש
  • משופצת
  • ממ"ד

נכסים שנמכרו באזור

חיפוש

אין נכסים שנמכרו באזור

כדאי לנסות להוריד מסננים אם יש

היסטוריית שווי הנכס