יד2 לעמוד הבית
מודעות שאהבתי
  • מודעות שאהבתיאין לך עדיין מודעות שאהבת. כדי לשמור מודעות שאהבת, ולשמור נוספות, יש להתחבר לחשבון שלך

נכס עם ממ״ד
13,000 ₪

הגיבור

נכס עם ממ״ד

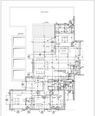
דירה, רמתיים, הוד השרון

6חדרים
קומה11/12
185מ״ר

בפרויקט נדיר ואיכותי בכמה רמות מעל כולם דירת מיני פנטהאוז משודרגת פלוס פלוס ובתכנון גאוני. 165.5 מ"ר פלוס מרפסת מרובעת כ19 מ"ר. מחסן גדול כ7.5 מ"ר ו2 חניות מוצמדות. יחידת מתבגר מלאה בכניסה לדירה כולל חדר רחצה מלא. הדירה פונה בעיקר למערב לנוף פנורמי ופתוח שעושה טוב לנפש! מפרט עשיר מא ועד ת. ובקיצור נכס מרשים ואיכותי במיוחד!!!

פרטים נוספים

סוג העסקה
השכרה
מצב הנכס
חדש מקבלן (לא גרו בנכס)
מ״ר בנוי
165 מ״ר
קומות בבניין
12
מספר תשלומים
12
חניות
2
תאריך כניסה
30/12/25

מה יש בנכס

  • מעלית
  • גישה לנכים
  • מזגן טורנדו
  • דלתות רב-בריח
  • מיזוג
  • סורגים
  • מחסן
  • דוד שמש
  • משופצת
  • ממ"ד
  • לטווח ארוך
  • מרפסת
  • חיות מחמד

היסטוריית שווי הנכס