350,000 ₪
מגרשים, עין הים, חדרה
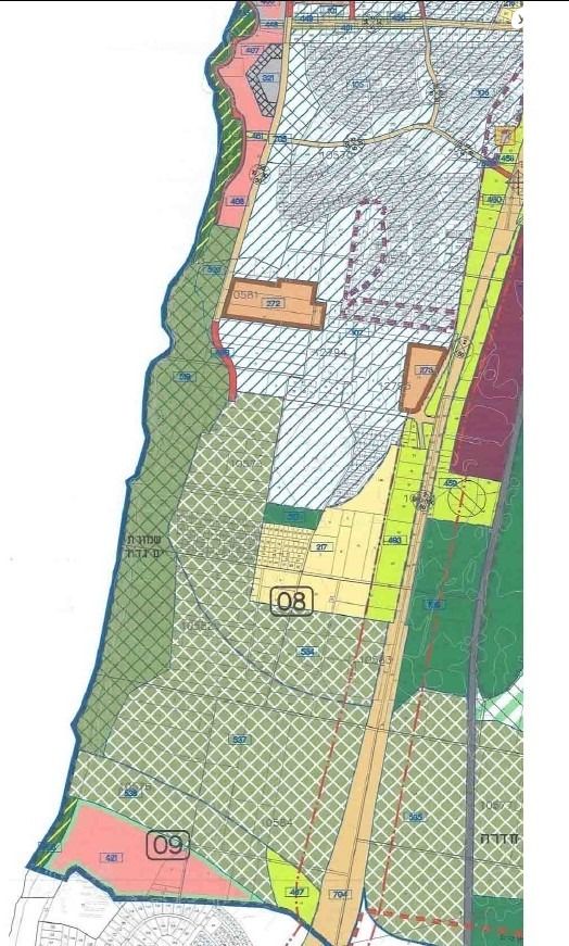
קרקע להשקעה במתחם 08 . דרומית לשכונת עין הים תוקם שכונת מגורים, לפי חד/2020. טאבו פרטי. למכירה 166 מ"ר.
לא לבניה מידית.
פרטים נוספים
- סוג העסקה
- מכירה
- חניות
- ללא
- מחיר למ"ר
- 2,108 ₪
- תאריך כניסה
- כניסה מידית
מה יש בנכס
- מעלית
- גישה לנכים
- מזגן טורנדו
- דלתות רב-בריח
- מיזוג
- סורגים
- מחסן
- דוד שמש
- משופצת
- ממ"ד

אין נכסים שנמכרו באזור
כדאי לנסות להוריד מסננים אם יש