פרטים נוספים
- סוג העסקה
- מכירה
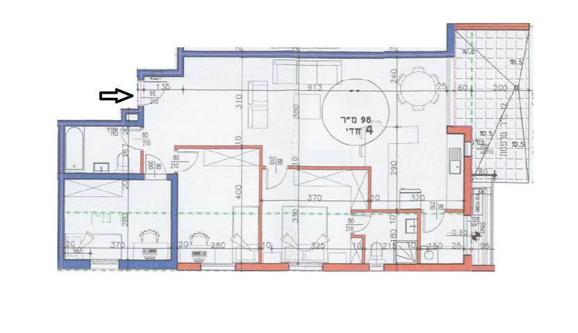
- מצב הנכס
- חדש (גרו בנכס)
- קומות בבניין
- 8
- חניות
- 1
- מחיר למ"ר
- 32,428 ₪
- תאריך כניסה
- כניסה גמישה
שם המלווה: בנק מזרחי טפחות בע"מ, מ.ר. 520000522. אי-עמידה בפירעון ההלוואה או בהחזר האשראי עלול לגרור חיוב בריבית פיגורים והליכי הוצאה לפועל.
מתן כל הלוואה ותנאיה כפופים לשיקול דעתו הבלעדי והסופי של המלווה, לנהליו, לתנאי החיתום שלו ולתנאי הסף שיקבעו בהם, כפי שיהיו מעת לעת. החישובים והנתונים המוצגים במחשבון הם לפי הריבית הכוללת החזויה (IRR) של בנק מזרחי המפורסמת באתרבנק ישראל. הנתונים המוצגים במחשבון מבוססים על תחזיות שאין כל ודאות כי יתממשו בפועל, ומהווים הערכה בלבד לשם ביצוע סימולציה, ואין בהם משום התחייבות מצד קבוצת יד2 או כל גוף אחר.
היסטוריית שווי הנכס









