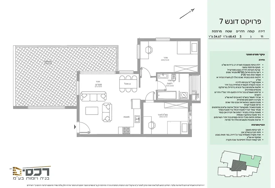
דירת 3 חדרים, 73 מ״ר בפרויקט דונש 7 רמת גן רמת גן | רכסים בנייה ויזמות ש.ע בעמ
דונש 7, נווה רם, שיכון מזרחי, רמת גן
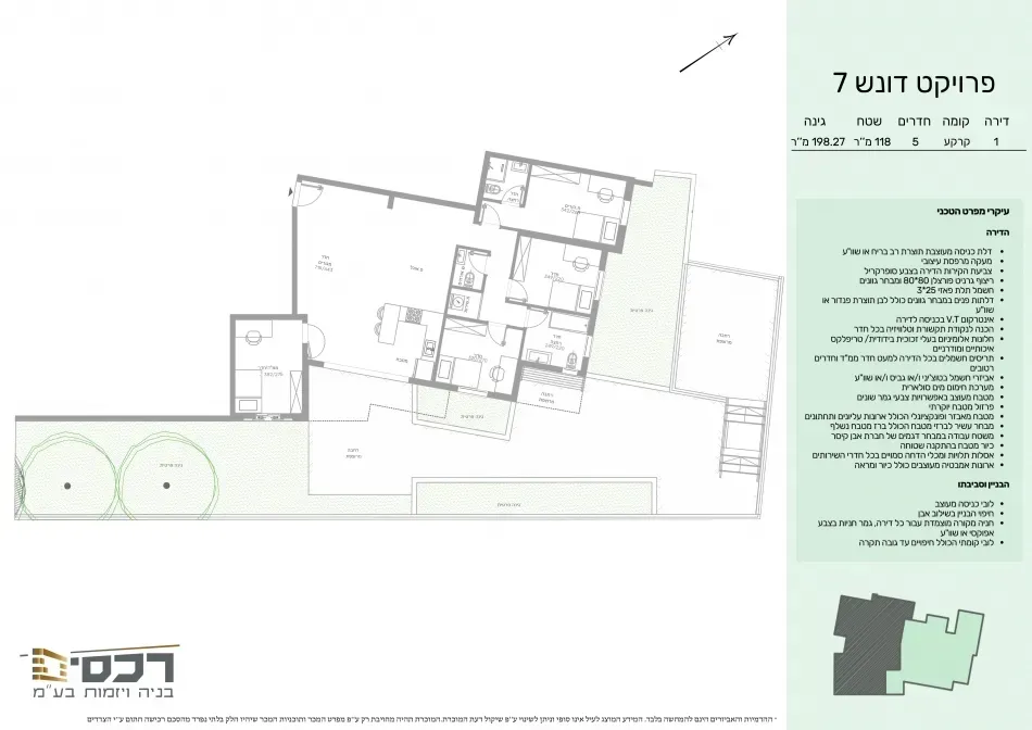
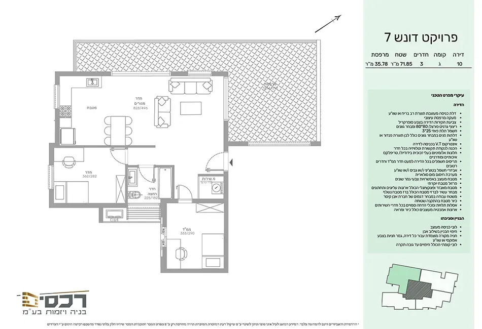
על הפרויקט
מבצע - משכנתא בריבית קבועה של 2.99% ללא הצמדה למשך 20 שנה אפשרות לעסקת 20/80 כולל הלוואות גישור בתנאים אטרקטיביים עד למסירת המפתח
מיקומים בקרבת הפרויקט
נכסים שנמכרו באזור
-
-
-
-
-
-
-
-
| כתובת | ת. עסקה | חד׳ | מ״ר | קומה | בנייה | מחיר |
|---|---|---|---|---|---|---|
| | | | | | | |
| | | | | | | |
| | | | | | | |
| | | | | | | |
| | | | | | | |
| | | | | | | |
| | | | | | | |
| | | | | | | |
אודות החברה
'רכסים בניה ויזמות' היא חברה יזמית מבצעת, אשר שמה לעצמה מטרה וחזון להביא בשורה חדשה לתחום הבניה למגורים: לאפשר לרוכשים להגיע אל הבית הנכסף בתהליך ייחודי ששם אותם במרכז. במהלך השנים התרכזה פעילות החברה בבניית פרויקטים למגורים במרכז הארץ, בעיקר ברמת גן ובבני ברק, תוך בחירה קפדנית של מיקומים מבוקשים בערים אלו. בבחירת המיקומים אנו מקפידים לקחת בחשבון מגוון היבטים: מחד, קרבה ונגישות לשירותים קהילתיים, בתי ספר, מרכזים מסחריים וכדומה. מאידך, צביון שקט ורגוע. כך אנחנו מאפשרים לקשת רחבה של אוכלוסיות ליהנות מדירות המוצעות על ידינו. כחברה יזמית מבצעת, היתרון של "רכסים" בא לידי ביטוי בעצמאות ובאי תלותה בגורמים חיצונים ובקבלני משנה. עובדה עקרונית זו מאפשרת לחברה לנהל מקרוב, לשלוט על הנעשה בשטח, לבקר ביצועים באופן אפקטיבי, להוזיל עלויות, לעמוד בלוחות הזמנים ולקבל ליווי בנקאי צמוד המבטיח את כספי הרוכשים ואת מסירת המפתח לדירה במועד המתוכנן.

דונש 7 רמת גן
לפרטים נוספים והזמנת סיור בדירה השאירו פרטים


























