פרויקט אנה פרנק – רמת גן פינת תל אביב - חרוזים, רמת גן | פגודה מתנאל בע"מ
אנה פרנק 23, רמת גן
על אנה פרנק – רמת גן פינת תל אביב
בניין אלגנטי עם 19 דירות בלבד, בסטנדרט פרימיום ומרחק פסיעה מפארק הירקון ומהרכבת הקלה.
דירות 2-5 חדרים, דירות גן ופנטהאוזים במיקום הטוב ביותר בעיר.
פרויקט אנה פרנק ממוקם בלב הפועם של שכונת חרוזים ברמת גן, אחת השכונות המבוקשות והיוקרתיות ביותר במפגש הערים רמת גן ותל אביב. הפרויקט מגדיר מחדש את המושג "פריים לוקיישן", כשהוא משלב בין שקט פסטורלי של רחוב חד-סטרי ואינטימי לבין נגישות מקסימלית למוקדי התרבות, הבילוי והעסקים של גוש דן.
הבניין, יצירה ארכיטקטונית מבית חברת פגודה, הינו בניין בוטיק בן 8 קומות הכולל 19 דירות בלבד המתוכננות להעניק לדיירים חוויית מגורים מושלמת ושלווה.
תמהיל הדירות בפרויקט מגוון ומתאים לקהלים שונים, החל מזוגות צעירים ועד למשפחות המחפשות איכות חיים ללא פשרות: דירות 2-5 חדרים מרווחות, דירת גן עם חצר פרטית ופנטהאוז ענק המשתרע על קומה שלמה. הדירות נהנות ממפרט טכני עשיר ויוקרתי הכולל מערכות מיזוג VRF מתקדמות, טכנולוגיית בית חכם, מטבחי מעצבים וחנייה מקורה בחניון תת-קרקעי. המיקום האסטרטגי מאפשר לדיירים ליהנות מגישה מיידית לפארק הירקון וגבעת נפוליאון, לצד נגישות יוצאת דופן לתחנת הרכבת הקלה ומתחם הבורסה.
יתרונות מרכזיים:
✅ מיקום אסטרטגי בשכונת חרוזים: מגורים בלב שכונת יוקרה שקטה במפגש בין רמת גן לתל אביב.
✅ נגישות תחבורתית מושלמת: מרחק פסיעה מתחנת הרכבת הקלה (הקו האדום) ומחלף ההלכה.
✅ חוויית מגורי בוטיק: בניין אינטימי עם 19 דירות בלבד המעניק פרטיות מקסימלית.
✅ סמיכות לטבע עירוני: מרחק הליכה קצר מפארק הירקון, גבעת נפוליאון ויער ראש ציפור.
✅ מוסדות חינוך מצטיינים: סביבה אידיאלית למשפחות עם קרבה לביה"ס הגפן, אוהל שם ומכללת שנקר.
✅ מפרט פרימיום: מערכות מיזוג VRF, בית חכם, לובי מפואר וחנייה תת-קרקעית לכל דירה.
תכנון ראשוני
הוגשה בקשה להיתר
ניתן היתר בניה
הבניה הסתיימה
נכסים שנמכרו באזור
דירה בבית קומות, איתמר 8 רמת גן
3,160,000 ₪
6 חד' • קומה - • 69 מ"ר • 2022
26.02.2026
דירה בבית קומות, יואב 6 רמת גן
2,690,000 ₪
3 חד' • קומה 1 • 52 מ"ר • 2023
26.02.2026
דירה בבית קומות, אנה פרנק 4 רמת גן
4,150,000 ₪
4 חד' • קומה 5 • 108 מ"ר • 1970
23.02.2026
דירה בבית קומות, יואב 18 רמת גן
4,500,000 ₪
4.5 חד' • קומה 7 • 102 מ"ר • 2019
18.02.2026
דירה בבית קומות, חביבה רייק 11 רמת גן
3,900,000 ₪
4 חד' • קומה - • 98 מ"ר • 2023
08.02.2026
כתובת | סוג נכס | ת. עסקה | חד' | שטח | קומה | בנייה | מחיר |
|---|---|---|---|---|---|---|---|
איתמר 8 רמת גן | דירה בבית קומות | 26.02.2026 | 6 | 69 | - | 2022 | 3,160,000 ₪ |
יואב 6 רמת גן | דירה בבית קומות | 26.02.2026 | 3 | 52 | 1 | 2023 | 2,690,000 ₪ |
אנה פרנק 4 רמת גן | דירה בבית קומות | 23.02.2026 | 4 | 108 | 5 | 1970 | 4,150,000 ₪ |
יואב 18 רמת גן | דירה בבית קומות | 18.02.2026 | 4.5 | 102 | 7 | 2019 | 4,500,000 ₪ |
חביבה רייק 11 רמת גן | דירה בבית קומות | 08.02.2026 | 4 | 98 | - | 2023 | 3,900,000 ₪ |
יואב 6 רמת גן | דירה בבית קומות | 05.02.2026 | 3 | 75 | 1 | 2024 | 2,650,000 ₪ |
אנה פרנק 13 רמת גן | דירה בבית קומות | 04.02.2026 | 4 | 100 | - | 2028 | 4,503,113 ₪ |
ביאליק 126 רמת גן | דירה בבית קומות | 03.02.2026 | 2 | 39 | - | 2000 | 1,700,000 ₪ |
מידע על השכונה
קהילתיות
6.3צביון דתי
2.7בילוי ופנאי
3.6התניידות ותחבורה
5.1גני ילדים
5.1גינות ופארקים
7.6קניות וסידורים
3.7מוסדות חינוך באזור
ת"ת בוסטון
גבעולים
3/5
שפת אם ד׳
הגפן
3/5
שפת אם ד׳
החשמונאים
2/5
שפת אם ד׳
הלל
2/5
שפת אם ד׳
דירוג | שם בית הספר | שלב חינוך | פיקוח | כיתות |
|---|---|---|---|---|
ת"ת בוסטון | יסודי | חרדי | א - ח | |
שפת אם ד׳ 3/5 | גבעולים | יסודי | ממלכתי | א - ח |
שפת אם ד׳ 3/5 | הגפן | יסודי | ממלכתי | א - ח |
שפת אם ד׳ 2/5 | החשמונאים | יסודי | ממלכתי | א - ח |
שפת אם ד׳ 2/5 | הלל | יסודי | ממלכתי | א - ח |
שפת אם ד׳ 5/5 | המנחיל | יסודי | ממלכתי | א - ח |
אודות החברה

חברת פגודה עוסקת למעלה מ25- שנים בייזום ובניית פרויקטים למגורים בגוש דן בכלל וברמת-גן בפרט. במהלך שנות פעילותה קנתה לעצמה החברה מוניטין רב באמינות, איכות והקפדה על שלמות, רמת גימור גבוהה ועמידה בלוחות זמנים.
החברה זכתה בתעודת הוקרה מראש העיר רמת-גן על איכויות אדריכליות וביצועיות הראויות להערכה. פרויקט אנה פרנק ,23 מצטרף לתנופת הבנייה של החברה ברחבי שכונת חרוזים. החברה הקימה מספר פרויקטים ברחובות השכונה בהם: יהודית, יואב, רחובות הנהר ואיתמר, זאת לצד פרויקט חדש אשר שיווקו יחל בקרוב ברח׳ חרוזים 30. לאורך כל שנות פעילותה החברה מאופיינת ביציבות כלכלית ובקשר החם שלה עם לקוחותיה ויעידו על כך מאות המשפחות שרכשו את דירותיהן מפגודה.
צוות החברה כולל אדריכלים ומתכנני ערים, מהנדסים ואנשי בנייה וניהול מנוסים ומיומנים מן השורה הראשונה וכן צוות אדמיניסטרטיבי מיומן ומקצועי – כל אלה מעניקים לדיירים חותמת איכות לכל החיים. לקוחות מרוצים הם הנכס החשוב ביותר של החברה!
כל מה שרציתם לדעת על אנה פרנק – רמת גן פינת תל אביב ברמת גן
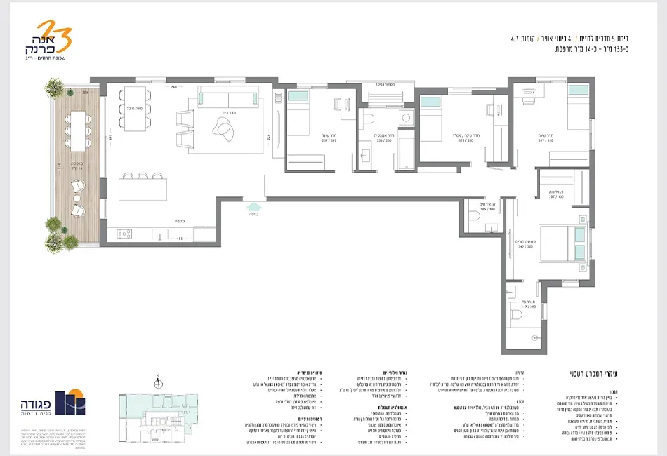
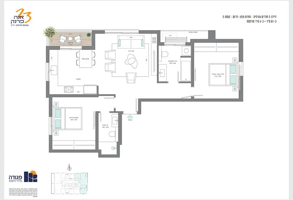
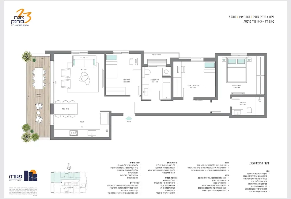
הפרויקט מציע דירות 3, 4 ו5 חדרים ודירת גן במגוון גדלים וקומות.
הדירות בפרויקט כוללות מגוון מפרטים ביניהם חניה, מיזוג, מעלית, ממ״ד ומרפסת.
מופעל על ידי

&


